Często spotykamy się z opinią, że tradycyjne fundamenty są tańsze od płyty fundamentowej. Postanowiliśmy rozprawić się z tą tezą po inżyniersku, porównując skrupulatnie wszystkie elementy, tak aby otrzymać na końcu ten sam zakres prac. Dwa aspekty różnią mocno tradycyjne fundamenty od płyt powodując, że bardzo trudno jest je wykonać z identycznym efektem jakościowym – chodzi o izolację i stabilność całej struktury, ale o tym więcej w dalszej części opracowania.
Aby porównać dokładnie fundament i płytę wykonaliśmy dwa projekty dla tego samego budynku.



Dane z projektu:
Lokalizacja: Pisarzowice koło Bielska-Białej
Powierzchnia: 137,8 m2
Obwód: 47,2 m
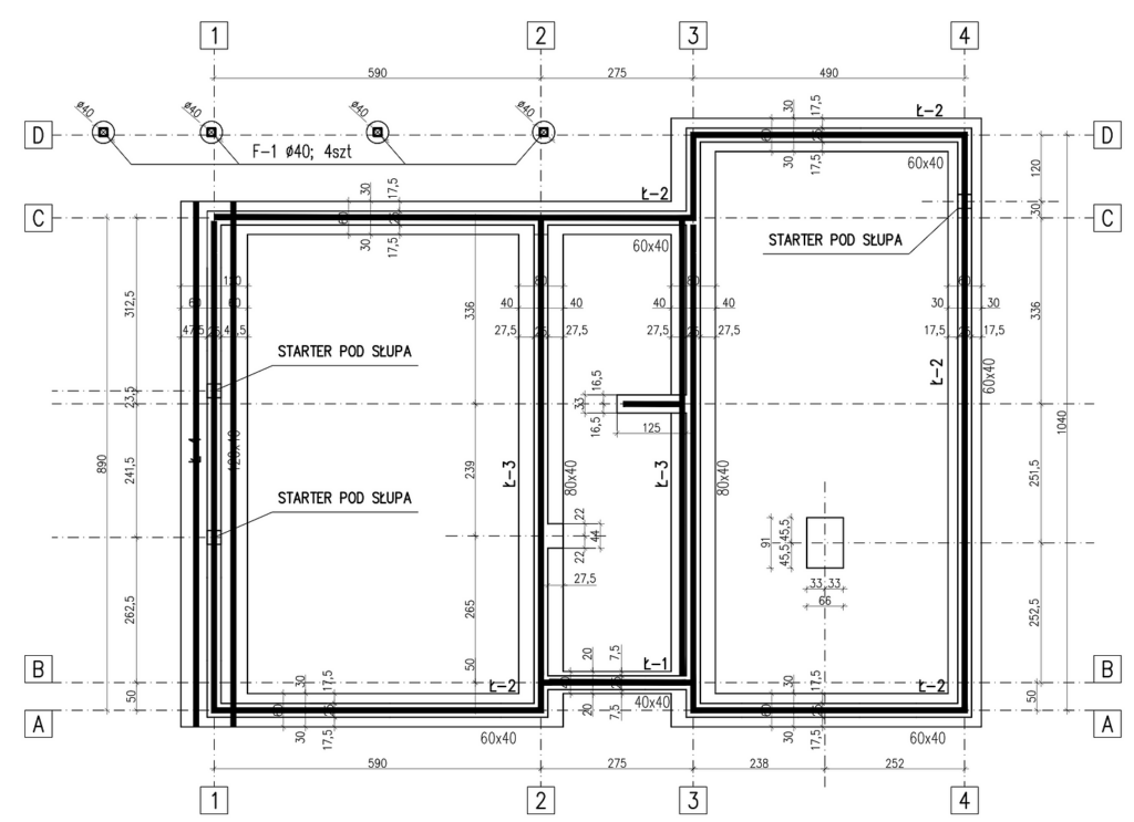
Długość ścian fundamentowych: 67,5 m
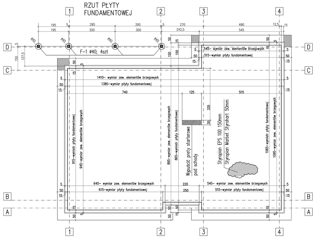
Grubość płyty: 0,2 m
Warunki gruntowe: proste, gliny twardoplastyczne, 30 cm humusu
Spadek terenu: 10 cm
Porównujemy prace koparki razem z rozłożeniem kruszywa, podbudowę, hydroizolację, termoizolację, zbrojenie, beton, ścianę fundamentową dla tradycyjnych fundamentów i koszt pracy.
Pomijamy koszty drenów, kanalizacji, bednarki, badania geologicznego, drobnych materiałów montażowych oraz odpadów budowlanych.
W obu przypadkach analizujemy izolację z XPS.
Podane ceny wyrażone w wartościach netto.
Płyta fundamentowa:
| prace ziemne | koparka | 40h | 160 zł | 6 400 zł |
| podbudowa | kruszywo | 100 ton | 60 zł | 6 000 zł |
| | piasek | 37 ton | 55 zł | 2 035 zł |
| termoizolacja | XPS | 21 m3 | 430 zł | 9 030 zł |
| hydroizolacja | folia bud. | 200 m2 | 3 zł | 600 zł |
| zbrojenie | siatki Q221 | 1 254 kg | 3,9 zł | 4 891 zł |
| | pręty fi12 | 426 kg | 3,6 zł | 1 533 zł |
| | dystanse | 365 kg | 4,1 zł | 1 496 zł |
| beton | C20/25 | 28,5 m3 | 360 zł | 10 260 zł |
| praca | | 137 m2 | 160 zł | 21 920 zł |
| Razem: | | | | 64 166 zł |
Klasyczny fundament:
| prace ziemne | koparka | 45 h | 160 zł | 7 200 zł |
| podbudowa | piasek | 113 ton | 55 zł | 6 195 zł |
| termoizolacja | XPS | 6,6 m3 | 430 zł | 2 838 zł |
| hydroizolacja | lekka | 189 m2 | 18 zł | 3 402 zł |
| | folia kubełk. | 120 m2 | 8 zł | 960 zł |
| | folia bud. | 200 m2 | 3 zł | 600 zł |
| zbrojenie | pręty fi12 | 302 kg | 3,6 zł | 1 179 zł |
| | siatki Q221 | 476 kg | 3,9 zł | 1 761 zł |
| beton | C20/25 | 17,55 m3 | 360 zł | 6 318 zł |
| | C10/12 | 15 m3 | 330 zł | 4 967 zł |
| ściany fund. | bloczki | 67,5 m2 | 70 zł | 4 725 zł |
| praca | | 137 m2 | 210 zł | 28 770 zł |
| Razem: | | | | 69 407 zł |
Jak widać tradycyjny fundament jest droższy o ponad 8%
co stanowi kwotę 5 241 zł.
To co powoduje, że płyta fundamentowa wydaje się droższa od tradycyjnego fundamentu to pozornie większa ilość materiałów cenotwórczych takich jak podbudowa, zbrojenie czy beton. Po dokładnej analizie widać jednak, że przy fundamentach występuje droga hydroizolacja, ściany fundamentowe oraz przede wszystkim koszt pracy jest wyraźnie wyższy co wynika z czasochłonności wykonania (około 3 razy dłużej).
Jak widać różnica w cenie jest znaczna na korzyść płyty fundamentowej przy czym należy pamiętać, że płyta jest znacznie mniej narażona na osiadanie nierównomierne oraz jest znacznie lepiej izolowana od wilgoci i termicznie.
Jeżeli zatem płyta jest tańsza i w dodatku lepsza od klasycznych fundamentów to wybór inwestora powinien być oczywisty.



